PROPERTY FRONT : 											 
											
											With step up to front entrance door.										
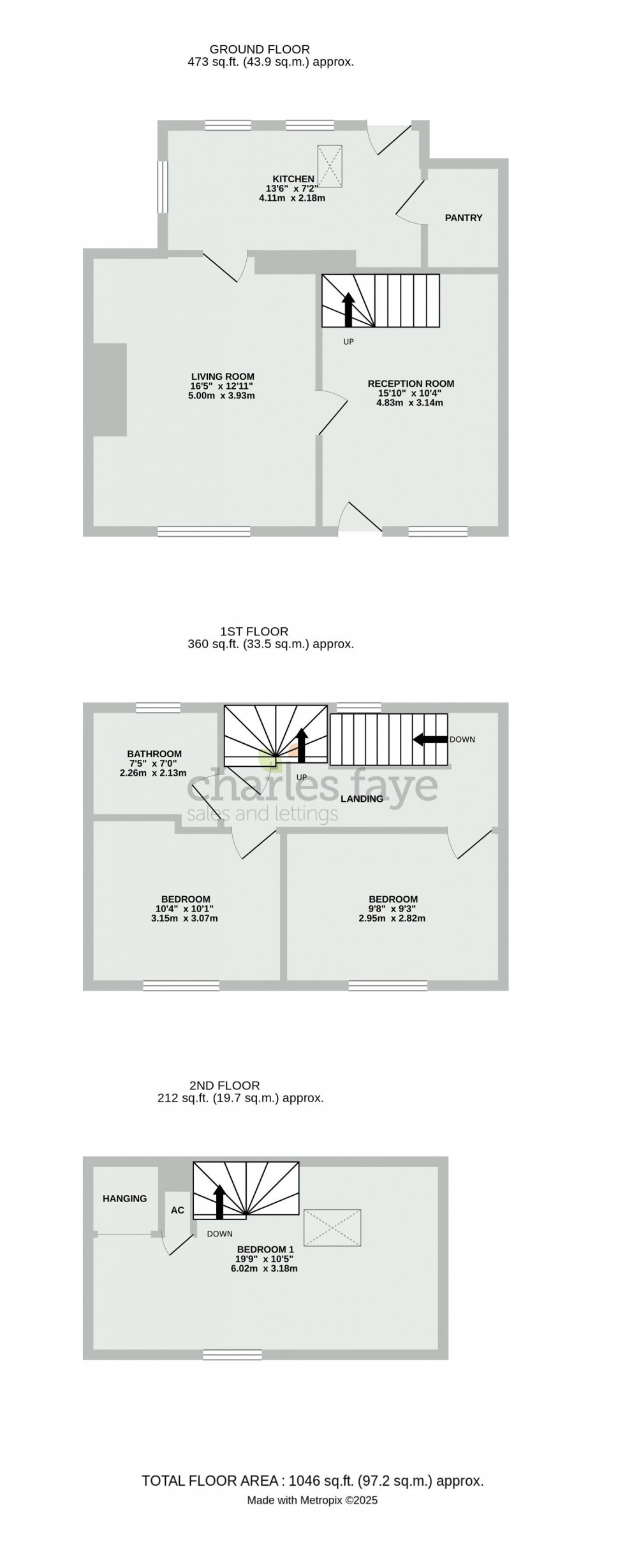
FORMAL DINING HALL / RECEPTION ROOM : 											15' 11'' x 10' 4'' (4.85m x 3.15m) 
											
											Window to front with newly fitted shutters with deep sill window seat beneath, original ceiling beams and wall timbers, open balustrade stairs rising to first floor, partially exposed stone wall sections, meter cupboards have been incorporated into the panelled interior front door surround, part glazed solid panelled wood door leading to the living room, radiator, partly floored with stone tiles.										
LIVING ROOM : 											16' 5'' x 12' 11'' (5.00m x 3.93m) 
											
											Window to front with newly fitted shutters with deep sill window seat beneath, original ceiling beams and wall timbers, filled with original architectural features, stunning fireplace with a working wood burner placed on a herringbone brick weave hearth with an oak mantle over, featuring painted stone walls, half height timber wall panelling, oak wood shelving within an original window recess, radiator, solid wood panelled door leading to the kitchen.										
KITCHEN : 											13' 6'' x 7' 2'' (4.11m x 2.18m) 
											
											Filled with natural light from the four windows, two of which over look the delightful rear garden, fitted with a range of floor units with work surface over, ceramic sink unit, wall shelving, electric Rangemaster Toledo range cooker with extractor hood over and subway style contemporary tiled splash back, integrated washing machine and tumble dryer, freestanding tall fridge freezer, exposed beams and wall timbers, painted stone walling, modern column radiator, original terracotta quarry tiling, solid wooden door to pantry cupboard, solid wooden half glazed door to the garden.										
PANTRY : 											6' 0'' x 4' 5'' (1.83m x 1.35m) 
											
											Shelved providing excellent storage, quarry tiled flooring.										
FIRST FLOOR ACCOMMODATION : 											 
											
																					
LANDING : 											14' 8'' x 5' 9'' (4.47m x 1.75m) 
											
											High level window rear, exposed painted stone walls, wooden doors to bedrooms two and three, solid wood part glazed door to bathroom, under stairs storage cupboard, stairs rising to the second floor accommodation.										
BEDROOM TWO : 											11' 8'' x 9' 3'' (3.55m x 2.82m) 
											
											Window to front with newly fitted shutters with window seat beneath, original ceiling beams, radiator, original floorboards,										
BEDROOM THREE : 											10' 4'' x 10' 1'' (3.15m x 3.07m) 
											
											Window to front with newly fitted shutters with window seat beneath, original ceiling beams, radiator.										
BATHROOM : 											7' 5'' x 7' 0'' (2.26m x 2.13m) 
											
											A casement window faces the rear and has a deep sill, modern fitted suite comprising close coupled hidden cistern w.c., vanity wash hand basin, `P` shaped panelled bath with an electric shower and hinged glass screen over, chrome towel radiator, stone tiled flooring.										
SECOND FLOOR ACCOMMODATION : 											 
											
																					
PRINCIPAL BEDROOM : 											19' 9'' x 10' 5'' (6.02m x 3.17m) 
											
											Window to front with newly fitted shutters, Velux style window to rear, A-frame timbers are fully exposed, cupboard housing boiler, eaves storage cupboards, ample hanging space for clothes. the balustrade at the top of the stairs is thoughtfully designed to be removable for ease of furniture access, original floorboards.										
EXTERNALLY : 											 
											
																					
REAR GARDEN : 											 
											
											A stunning garden with multiple areas of interest, south westerly-facing with a path meandering down to a rear gate, giving right of access via a footpath to New Road. The garden has several areas for relaxation and cultivation lovingly created by the present owner and featuring a stone patio, decorative brick path, original walled sections, a wood store, a summerhouse and pergola covered with a mature wisteria. The garden is filled with an abundance of mature shrubs, trees, flowering and ground cover plants making this garden a perfect idyllic setting to relax and enjoy. There is outside electric and a tap.										
PROPERTY FRONT : 											 
											
											With step up to front entrance door.										
FORMAL DINING HALL / RECEPTION ROOM : 											15' 11'' x 10' 4'' (4.85m x 3.15m) 
											
											Window to front with newly fitted shutters with deep sill window seat beneath, original ceiling beams and wall timbers, open balustrade stairs rising to first floor, partially exposed stone wall sections, meter cupboards have been incorporated into the panelled interior front door surround, part glazed solid panelled wood door leading to the living room, radiator, partly floored with stone tiles.										
LIVING ROOM : 											16' 5'' x 12' 11'' (5.00m x 3.93m) 
											
											Window to front with newly fitted shutters with deep sill window seat beneath, original ceiling beams and wall timbers, filled with original architectural features, stunning fireplace with a working wood burner placed on a herringbone brick weave hearth with an oak mantle over, featuring painted stone walls, half height timber wall panelling, oak wood shelving within an original window recess, radiator, solid wood panelled door leading to the kitchen.										
KITCHEN : 											13' 6'' x 7' 2'' (4.11m x 2.18m) 
											
											Filled with natural light from the four windows, two of which over look the delightful rear garden, fitted with a range of floor units with work surface over, ceramic sink unit, wall shelving, electric Rangemaster Toledo range cooker with extractor hood over and subway style contemporary tiled splash back, integrated washing machine and tumble dryer, freestanding tall fridge freezer, exposed beams and wall timbers, painted stone walling, modern column radiator, original terracotta quarry tiling, solid wooden door to pantry cupboard, solid wooden half glazed door to the garden.										
PANTRY : 											6' 0'' x 4' 5'' (1.83m x 1.35m) 
											
											Shelved providing excellent storage, quarry tiled flooring.										
FIRST FLOOR ACCOMMODATION : 											 
											
																					
LANDING : 											14' 8'' x 5' 9'' (4.47m x 1.75m) 
											
											High level window rear, exposed painted stone walls, wooden doors to bedrooms two and three, solid wood part glazed door to bathroom, under stairs storage cupboard, stairs rising to the second floor accommodation.										
BEDROOM TWO : 											11' 8'' x 9' 3'' (3.55m x 2.82m) 
											
											Window to front with newly fitted shutters with window seat beneath, original ceiling beams, radiator, original floorboards,										
BEDROOM THREE : 											10' 4'' x 10' 1'' (3.15m x 3.07m) 
											
											Window to front with newly fitted shutters with window seat beneath, original ceiling beams, radiator.										
BATHROOM : 											7' 5'' x 7' 0'' (2.26m x 2.13m) 
											
											A casement window faces the rear and has a deep sill, modern fitted suite comprising close coupled hidden cistern w.c., vanity wash hand basin, `P` shaped panelled bath with an electric shower and hinged glass screen over, chrome towel radiator, stone tiled flooring.										
SECOND FLOOR ACCOMMODATION : 											 
											
																					
PRINCIPAL BEDROOM : 											19' 9'' x 10' 5'' (6.02m x 3.17m) 
											
											Window to front with newly fitted shutters, Velux style window to rear, A-frame timbers are fully exposed, cupboard housing boiler, eaves storage cupboards, ample hanging space for clothes. the balustrade at the top of the stairs is thoughtfully designed to be removable for ease of furniture access, original floorboards.										
EXTERNALLY : 											 
											
																					
REAR GARDEN : 											 
											
											A stunning garden with multiple areas of interest, south westerly-facing with a path meandering down to a rear gate, giving right of access via a footpath to New Road. The garden has several areas for relaxation and cultivation lovingly created by the present owner and featuring a stone patio, decorative brick path, original walled sections, a wood store, a summerhouse and pergola covered with a mature wisteria. The garden is filled with an abundance of mature shrubs, trees, flowering and ground cover plants making this garden a perfect idyllic setting to relax and enjoy. There is outside electric and a tap.