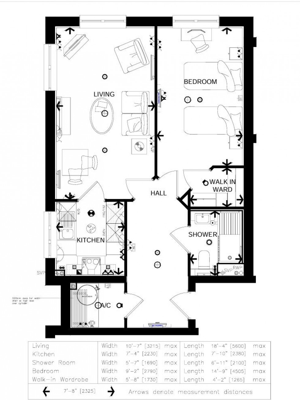
ENTRANCE HALLWAY :
Doors to living room, bedroom and shower room, wall mounted electric heater, airing / storage cupboard housing hot water cylinder.
LIVING ROOM : 18' 4'' x 10' 7'' (5.58m x 3.22m)
Two upvc double glazed windows, feature fireplace with electric fire, two wall mounted electric heaters, door to kitchen.
KITCHEN : 7' 10'' x 7' 4'' (2.39m x 2.23m)
Upvc double glazed window, modern fitted kitchen to include wall and base cabinets with complementary work surface over, stainless steel sink unit, tiled surrounds, built in oven, electric hob, extractor chimney over, built in fridge freezer, space and plumbing for washing machine, vinyl flooring.
BEDROOM : 14' 9'' x 9' 2'' (4.49m x 2.79m)
Upvc double glazed window, wall mounted electric heater, door to walk in wardrobe.
WALK IN WARDROBE : 4' 2'' x 5' 8'' (1.27m x 1.73m)
Storage and hanging facility.
SHOWER ROOM : 6' 11'' x 5' 7'' (2.11m x 1.70m)
A stylish modern suite to include close coupled hidden cistern w.c., vanity wash hand basin with mirror and storage, fully tiled large walk in shower cubicle, tiled walls, chrome heated towel rail.
ON SITE FACILITIES :
Lodge Manager
24 Hour Support and Help
Video Entry System
Guest Suite
Owners' Lounge with Coffee Bar
Lift to all Floors
Landscaped Gardens
Free Parking
MANAGEMENT CHARGES :
Churchill Estate Management maintain the upkeep and running of this development.
The annual service charge is £2746.13
LEASEHOLD DETAILS :
The lease remaining on the property is 997 years.
ENTRANCE HALLWAY :
Doors to living room, bedroom and shower room, wall mounted electric heater, airing / storage cupboard housing hot water cylinder.
LIVING ROOM : 18' 4'' x 10' 7'' (5.58m x 3.22m)
Two upvc double glazed windows, feature fireplace with electric fire, two wall mounted electric heaters, door to kitchen.
KITCHEN : 7' 10'' x 7' 4'' (2.39m x 2.23m)
Upvc double glazed window, modern fitted kitchen to include wall and base cabinets with complementary work surface over, stainless steel sink unit, tiled surrounds, built in oven, electric hob, extractor chimney over, built in fridge freezer, space and plumbing for washing machine, vinyl flooring.
BEDROOM : 14' 9'' x 9' 2'' (4.49m x 2.79m)
Upvc double glazed window, wall mounted electric heater, door to walk in wardrobe.
WALK IN WARDROBE : 4' 2'' x 5' 8'' (1.27m x 1.73m)
Storage and hanging facility.
SHOWER ROOM : 6' 11'' x 5' 7'' (2.11m x 1.70m)
A stylish modern suite to include close coupled hidden cistern w.c., vanity wash hand basin with mirror and storage, fully tiled large walk in shower cubicle, tiled walls, chrome heated towel rail.
ON SITE FACILITIES :
Lodge Manager
24 Hour Support and Help
Video Entry System
Guest Suite
Owners' Lounge with Coffee Bar
Lift to all Floors
Landscaped Gardens
Free Parking
MANAGEMENT CHARGES :
Churchill Estate Management maintain the upkeep and running of this development.
The annual service charge is £2746.13
LEASEHOLD DETAILS :
The lease remaining on the property is 997 years.